FOR LEASE - last space
Located: 570 Lawrence St Suite 130, Eugene, OR 97401
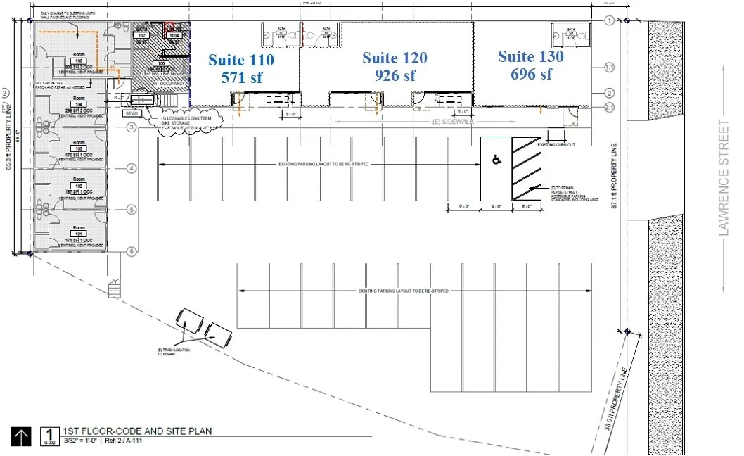
1st Floor Ste 130
SIZE: 695 SF
TERM: Negotiable
RENTAL RATE: $24 SF/YR
SPACE USE: Coffee, Bar, Retail
CONDITION: Full Build-Out
AVAILABLE: Now
New mixed use development featuring micro retail.
High visibility location with ample parking.
Fully renovated with new store fronts, hvac, electrical, etc. With the exception of flooring and paint, will be delivered in move-in ready condition.
CONTACT: Justin Schmick - Windermere: 541.465.8107

